店舗
【新築賃貸テナント】Cocowa Le Hal(ココワ・ル・ハル)
update2026.02.16
テナント
Cocowa Le Hal(ココワ・ル・ハル)
賃 料10万円~21万円
- 所在地
- 京都市山科区東野舞台町29-1
- 交通
- 地下鉄東西線「東野」駅徒歩13分
- 建物面積
- 34㎡~77㎡
託児所、小規模保育園、学習塾等大歓迎!
業種相談
業種相談
- 物件種別
- テナント
- 構造
- 木造造
- 管理費
- 5千円~1万円
- 駐車場
- 1台11,000円
- 築年月
- 2026/6
- 現状
- 未完成/2026年6月完成予定
- 更新料
- 1ヶ月
- 保証会社
- 全保連もしくは日本セーフティー加入要
- 備考
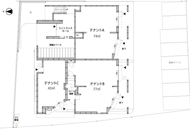
- パターン①
テナントA 74㎡ 19万円 管理費1万円 保証金60万円
テナントB 77㎡ 21万円 管理費1万円 保証金60万円
テナントC 43㎡ 14万円 管理費8千円 保証金45万円
パターン②
テナントA 38㎡ 10万円 管理費5千円 保証金30万円
テナントB 36㎡ 10万円 管理費5千円 保証金30万円
テナントC 43㎡ 12万円 管理費7千円 保証金36万円
テナントD 34㎡ 10万円 管理費5千円 保証金30万円
テナントE 43㎡ 14万円 管理費8千円 保証金45万円
※テナント分割についてはご契約順となることをご承知おきください。
全室共通 スケルトン渡し 契約期間2年
保証金返還率:5年未満30%、10年未満50%、10年以上70%
※火災保険加入要






